
【閥門用途】
全焊接球閥采用板材鍛壓后焊接而成,重量比栓接結構輕10~20%左右,閥門體積也較小。同時也減少了閥門外漏點,提高了閥門的使用可靠性。選用不同的驅動方式可滿足不同工礦對閥門的控制要求。全焊接球閥廣泛應用于含硫化氫等腐蝕嚴重的天然氣長輸管線及埋地管線,具有較長的使用壽命。
【基本特點】
1、由于閥座是由碳化特氟隆密封環及碟形彈簧構成的,所以對壓力和溫度的變化適應能力強,在標注壓力和溫度范圍內不會產生任何泄滑。
2、球體的加工過程有計算機檢測儀跟蹤檢測,所以球體的加工精度高。
3、由于閥體材料跟管道材質一樣,不會出現應力不均,也不會由于地震及車輛經過地面時而產生變形,管道耐老化。
4、密封環本體采用含量25%Carbon(碳素)的RPTFE材質,保障完全無泄漏。
5、直埋式焊接球閥可以直接埋于地下,不用建高大型閥門井,只需在地面上設置小型淺井,大大節省施工費用及工程時間。
6、全焊接球閥可根據管道的施工及設計要求,調整閥體的長短和閥桿的高度。
7、球體的加工精度非常精密,操作輕便,無不良干涉。
8、在保證全焊接球閥正常操作、使用情況下,使用壽命在15年以上。
【執行標準】
設計規范: API 6D API 608 BS 5351 GB/T 12237
結構長度: ASME B16.10 GB/T12221
法蘭連接: ASME B16.5 GB/T9113
試驗與檢驗:GB/T 13927 API 598 API 6D
【性能參數】
| 工作壓力(Mpa) | 1.6~42.0 (Calss150-Calss2500) | |
| 口徑(mm) | DN15-DN1200 1/2″-48″ | |
| 適用介質 | 水、油、氣、醋酸類、硝酸類等其他介質 | |
| 可選材料 | 閥體 | A105 F304 F316 低溫鋼 |
| 球體 | WCB CF8 CF8M 低溫鋼 | |
| 閥桿 | 2Cr13 F304 F316 低溫鋼 | |
| 密封面 | PTFE RPTFE PEEK NYLON | |
| 填料 | 柔性石墨 | |
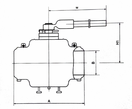
【結構示意圖】







<
<
<
<
<
<
<
<
<
<
